Продам помещение свободного назначения 357.3 м.кв.

Просмотров 8
8 850 000 руб.
на 61% дешевле похожих объектов ?
Белокуриха , село Быстрый Исток, ул Ленина, д. 41
Николай Иосифович
Показать телефон
Данные актуальны на 04.12.2025
Пожаловаться на объявление
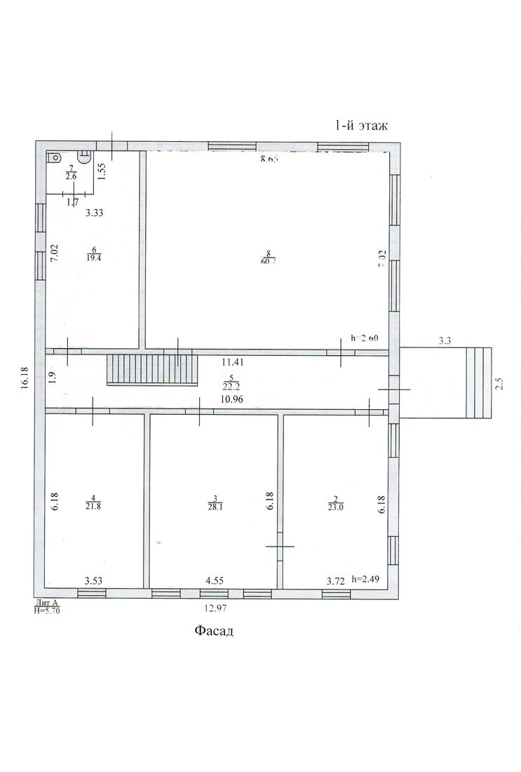
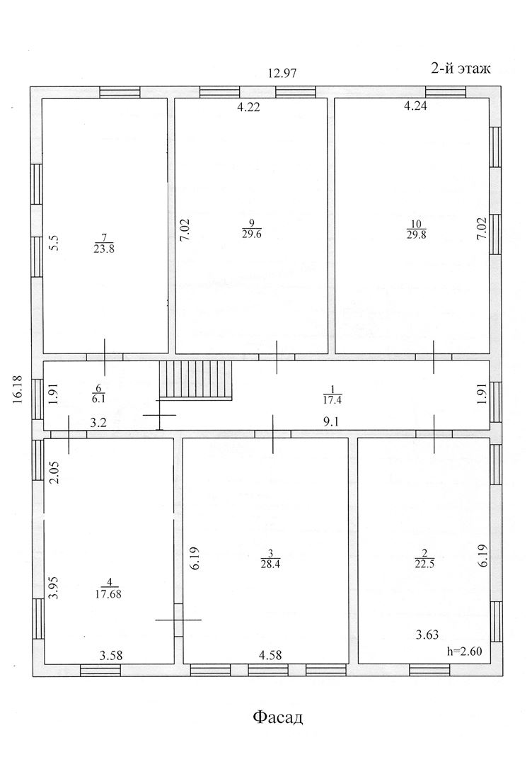
ID в ИМЛС: 11011809 Продам Магазин площадью 357,3 м² и участок площадью 994 м² ( село Быстрый Исток ул Ленина 41). Дом: тип строения - отдельно стоящее, материал стен - деревянный, этаж - 1, 2, этажность - 2. Расположение в центре населённого пункта в непосредственном соседстве с районным судом, прокуратурой, редакцией, торговым центром МАРИЯ РА, магазинами бытовой техники и продуктовыми магазинами. Рядом администрация района. Двухэтажное обособленное здание, состоящее из нескольких сообщающихся помещений пригодно для торговли одеждой, для общепита, парикмахерских услуг и т.п. Расположено в центре Быстрого Истока на центральной площади. Одно из самых посещаемых мест района, известно в соседних районах и городе Белокуриха.

Дополнительная информация

Тип здания Отдельное здание Этаж 2 Этажность 2 Количество комнат - Вход - Ремонт -
Интернет - Кондиционер - Вентиляция - Пожарная сигнализация - Красная линия -
Динамика изменения цен на рынке недвижимости ?

По городу Белокуриха, в категории Универсальные помещения
За последние полгода средняя сумма за кв.м. уменьшилась на 6020 руб. Колебание цен происходило от 61499 руб. до 73859 руб. На текущий момент наблюдается тенденция к уменьшению цены.
Похожие объявления
Обновлено
08.10.2025
Фотографии
9
Объявление 727222
Белокуриха, Алтайское, ул П.Ф.Сенчихина, д. 81м/1
20 000 000
руб. Продажа
390 м2
Вход в личный кабинет